Перше покоління Volkswagen Jetta (роки випуску: 1979–1984) – класичний компактний седан, обслуговування електрики якого потребує уваги. У цій статті надається детальна інформація про запобіжники і реле Фольксваген Джета 1, включаючи опис схем блоків, місця їхнього розташування та фото-приклади. Ми акцентуємо увагу на визначенні запобіжника, що живить прикурювач.
Електрична система Jetta 1 (A1) є досить простою, але часто страждає від несправностей, пов’язаних із реле (наприклад, реле склоочисників або паливного насоса). Оскільки діагностика реле складніша, ніж запобіжників, завжди слід перевіряти обидва компоненти, щоб уникнути помилкової заміни запобіжника.

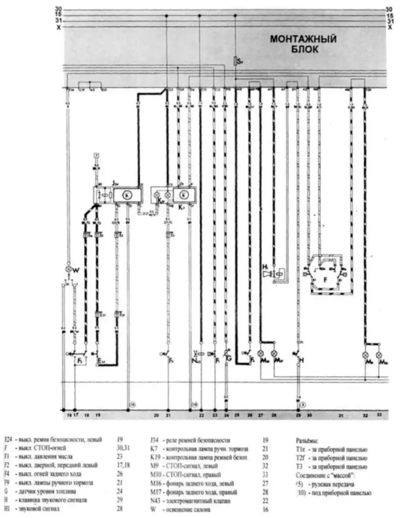
Зверніть увагу, що призначення елементів може відрізнятись. Це залежить від року випуску, рівня електричного оснащення та регіону поставки Вашого автомобіля.
Блок запобіжників і реле
Оскільки Jetta 1 є прямим технічним аналогом Golf 1, більшість електричних рішень та розташування основного монтажного блоку повністю збігаються (під панеллю приладів з боку водія). При заміні реле чи запобіжників, через вік, рекомендується перевіряти їхні гнізда на наявність корозії або слабких контактів.

| № | A | Опис запобіжників |
|---|---|---|
| 1 | 8 | Ліва фара ближнє світло |
| 2 | 8 | Права фара ближнє світло |
| 3 | 8 | Ліва фара дальнє світло |
| 4 | 8 | Права фара дальнє світло |
| 5 | 16 | Обігрів заднього скла |
| 6 | 8 | Стоп-сигнал, аварійні вогні |
| 7 | 8 | Прикурювач, внутрішнє освітлення, годинник |
| 8 | 8 | Покажчики поворотів |
| 9 | 8 | звуковий сигнал і світло заднього ходу |
| 10 | 16 | Вентилятор радіатора |
| 11 | 8 | Склоочисник, склоомивач та омивач заднього скла |
| 12 | 8 | Підсвічування номерного знака |
| 13 | 8 | Задній ліхтар правий, передній габаритний ліхтар правий |
| 14 | 8 | Задній ліхтар лівий, передній габаритний ліхтар лівий |
| 15 | 8 | Протитуманна фара 25А Вентилятор радіатора |
| 16 | 50 | Пускові свічки розжарення |
| Призначення реле | ||
| R1 | Контроль зарядки | |
| R2 | Передні склоочисники | |
| R3 | Аварійна сигналізація | |
| R4 | Сигнал не пристебнутих ременів безпеки | |
| R5 | Задній склоочисник | |
| R6 | Контрольні лампи / паливний насос | |
| R7 | Свічки розжарювання / Контроль вмісту кисню | |
| R8 | Звуковий сигнал | |
Окремо у верхній частині блоку можуть встановлюватися додаткові запобіжники, що відповідають за роботу радіо, електричних склопідіймачів та інше.
Загальна схема електричних з’єднань
